电 话:028-86751041-8004
联系人:王倩
手 机:15308020014
地 址: 中国 上海 嘉定区嘉涌路99弄6号713

更新时间:2022-11-18 浏览数:47
所属行业:机械设备> 阀门> 执行器
发货地址:
产品规格:--
产品数量:1
包装说明:--
单 价:面议
德国REXROTH三方向座阀SEC 6系列使用说明
企业QQ:2880626087
手机:
电话: -8004
传真: -8007
邮箱: @163.com
联系人:王倩
产品信息:
SEC 型号的方向阀是电磁操作的方向座阀。
该阀控制流体的启动、停止和方向,主要由
壳体 (1)、线圈 (2) 以及强化的阀系统 (3
) 组成。
电路来实现预期的控制,而控制的精度和灵
活性都能够保证。电磁阀有很多种,不同的
电磁阀在控制系统的不同位置发挥作用,
常用的是单向阀、安全阀、方向控制阀、速
手动应急操作允许在不给线圈通电的情况下
切换阀门。
实物图:

产品简介:
电磁阀(Electromagneticvalve)是用电磁控
制的工业设备,是用来控制流体的自动化基
础元件,属于执行器,并不限于液压、气动。
用在工业控制系统中调整介质的方向、流量、
气体向一个方向流动,这样的阀叫做单向型
控制阀,比如单向阀,梭阀等;可以改变气体
手动应急操作仅可在油箱压力高达约 50 bar 的
情况下启动。请勿损坏用于手动应急操作的孔!
流向的控制阀叫做换向阀,比如常用的2way2
port,2way3port,2way5port,3way5port等。
速度和其他的参数。电磁阀可以配合不同的
度调节阀等。在实际应用中,可根据不同的
需要将方向控制阀分成若干类别:
(1)按照气体在管道的流动方向,如果只允许
基本原理
在起始位置,控制阀芯 (5) 通过弹簧 (4)
被压入阀座。线圈 (2) 的力通过操作元件 (
6) 和滚珠 (7) 施加到控制阀芯 (5) 上。可
线圈电流截断时会产生电压峰值,可通过使用合
适的二极管予以降低。 ?
有关装配、调试和维护,请参阅样本 07300 ?
在设置模式下,可以通过控制两个线圈到达 H 位
在壳体上安装多四个阀系统 (3),可以以不
同方式切换,具体取决于阀芯。
注意:
要确保不超过指定的大流量!如果适用,可
过 50 %!
中可能产生不同的压力梯度。
仅有一个阀门时,不可将其用于保持负载或位置
(特殊的操作工具,需单独订购,物料号为 R
使用阻尼螺塞来限制流量(请参阅功能说明)。
泵或油箱的阀会有预开口,具体取决于生产公
差。因此,对于相同类型的阀门,在切换过程
置(仅使用带阀芯符号“E”的三位四通方向座阀
)在间歇操作 S3 中,为防止线圈过热(根据 VD
E 0580),当运行时间为 5 分钟时,占空比不
超过 10 %,运行时间为 70 秒时,占空比不得超
900024943)。当占空比为 100 % 时,无法同时
对两个线圈进行操作。同时操作两个线圈时,允
许的大占空比为 10 %。 ?
折叠手动换向阀:
特征:利用手动杠杆操纵阀芯运动以控制流向
分类:钢球定位式、 弹簧复位式。
多路换向阀
特征:是一种集中布置的组合式手动换向阀
串联式
分类:按组合方式有〈 并联式
顺序单动式
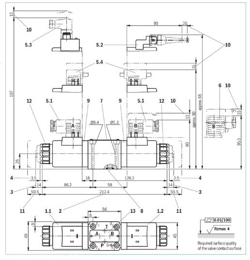
尺寸图:

德国REXROTH三方向座阀SEC 6系列使用说明